Ref.
Cerco
Tipus
A
Zona
Habitacions
Banys
Característiques
Preu

¡PIS EN VENDA ACTUALMENT LLOGAT A LA CREU DE BARBERÀ! ¡IDEAL INVERSORS! (ref.3071)

Pis en venda a Sabadell, Barcelona (Creu de Barberà )

137.700 €
ref. 3071
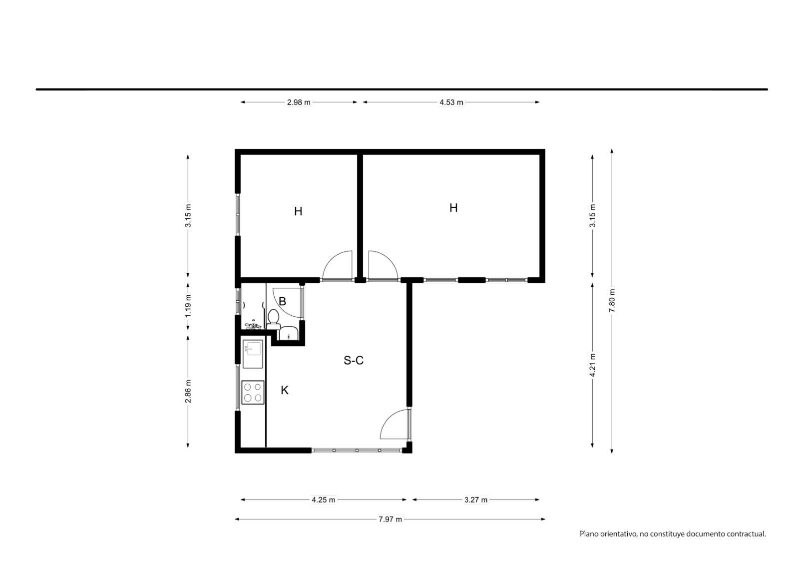
62 m2 construïts
55 m2 útils
 
 Dormitoris 2
 Banys 1
 Alçada/Planta 3
 Fusteria Exterior
 Fusteria Interior

Estat
Tipus de terra
Qualificació Energètica (G) MOSTRA
Llum
Aigua
  • Finca actualment llogada, amb venciment de contracte el 28/06/2030 i molt bona rendibilitat des del primer dia.

IGLOO exes CENTRE comercialitza aquest pis totalment reformat de 62 m² segons cadastre, distribuït en saló-menjador amb gran finestral que aporta molta llum, 2 habitacions, 1 d’elles doble, cuina integrada al menjador i bany complet.

L'habitatge es troba en una 3ª planta sense ascensor.

Ubicada a la zona de la Creu de Barberà envoltada de tot tipus de serveis, supermercats, escoles, transport públic,... i accés ràpid a la C-58 i AP-7.

SENSE COMISSIONS D'AGÈNCIA. L'habitatge es comercialitza mitjançant col·laboradors que no cobren comissió d'agència, oferint-te un procés directe, clar i sense despeses addicionals.

El comprador ha d'assumir les despeses d'ITP o IVA, les gestions de Notaria, Registre, Gestoria i les despeses bancàries en el cas que sol·liciti una hipoteca.

Aicat 2643.

Si voleu més informació sobre aquesta propietat, si us plau, ompli el qüestionari:

Si desitja calcular la seva hipoteca, ompli el formulari:

%
anys
Calcular