Ref.
Cerco
Tipus
A
Zona
Habitacions
Banys
Característiques
Preu

¡PIS EN VENDA ACTUALMENT LLOGAT A LA CREU DE BARBERÀ! ¡IDEAL INVERSORS! (ref.3051)

Pis en venda a Sabadell, Barcelona (Creu de Barberà )

135.000 €
ref. 3051
75 m2 construïts
65 m2 útils
 
 Dormitoris 3
 Banys 1
 Alçada/Planta 3
 Fusteria Exterior
 Fusteria Interior

Estat
Tipus de terra
Qualificació Energètica (G) MOSTRA
Llum
Aigua

Finca actualment llogada, amb venciment de contracte el 16/02/2030 i molt bona rendibilitat.

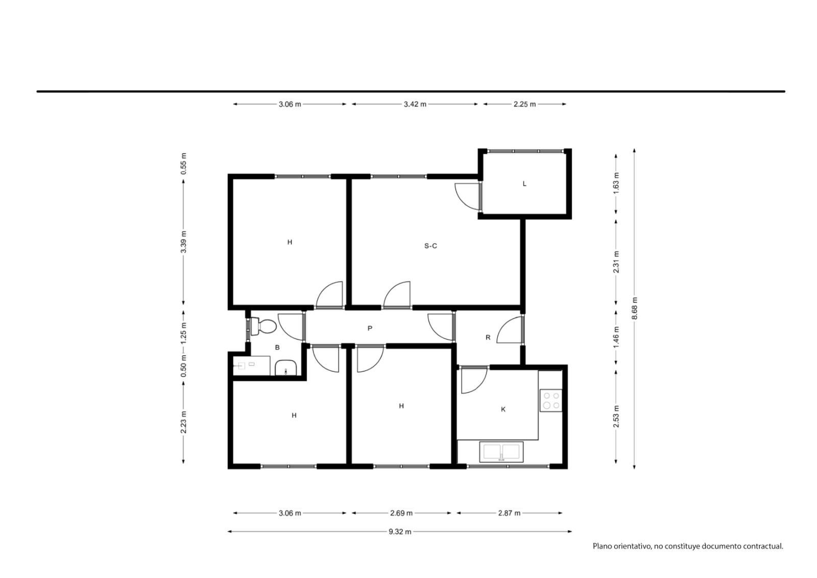
IGLOO exes CENTRE comercialitza aquest pis totalment reformado i totalment exterior de 75 m² segons cadastre i 65 m² útils, situat entre el C. De Feijoo cantonada amb el C. Teixidors, distribuït en saló-menjador amb gran finestral que aporta molta lluminositat i amb sortida a un balcó tancat, 3 habitacions dobles, cuina independent exterior i bany complet amb plat de dutxa.

L'habitatge es troba en una 3a planta sense ascensor.

Situada a la zona de la Creu de Barberà, envoltada de tot tipus de serveis, supermercats, escoles, transport públic,... i amb ràpid accés a la C-58 i AP-7.

SENSE COMISSIONS D'AGÈNCIA. L'habitatge es comercialitza mitjançant col·laboradors que no cobren comissió d'agència, oferint-te un procés directe, clar i sense despeses addicionals.

El preu de venda no inclou els següents impostos i despeses: ITP (del 10% i en el cas que pugui acollir-se a ajudes de menors de 35 anys pagaran un 5%), les gestions de Notaria, Registre, Gestoria i les despeses bancàries en el supòsit de que sol.liciti hipoteca.

Si necessita trobar les millors condicions hipotecàries del mercat i oferir-li un bon servei, pot trucar-nos i consultar-nos sense compromís.

REFERÈNCIA CÈDULA: CHB04902822001.

CERTIFICADO ENERGÉTICO: G ENERGIA 245 - E EMISSIONS 46

AICAT 2643.

NÚMERO API 10799.

GRAN TENIDOR.

Si voleu més informació sobre aquesta propietat, si us plau, ompli el qüestionari:

Si desitja calcular la seva hipoteca, ompli el formulari:

%
anys
Calcular